no. mls 20129918
399 900 $
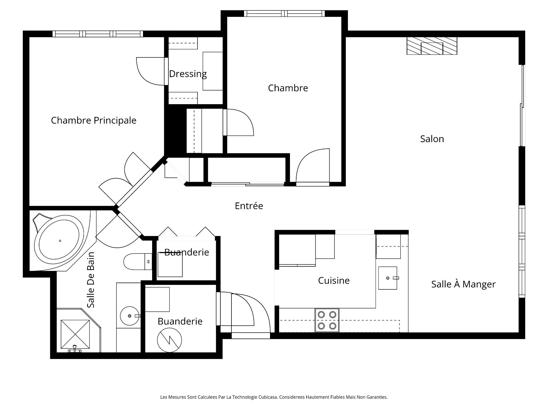
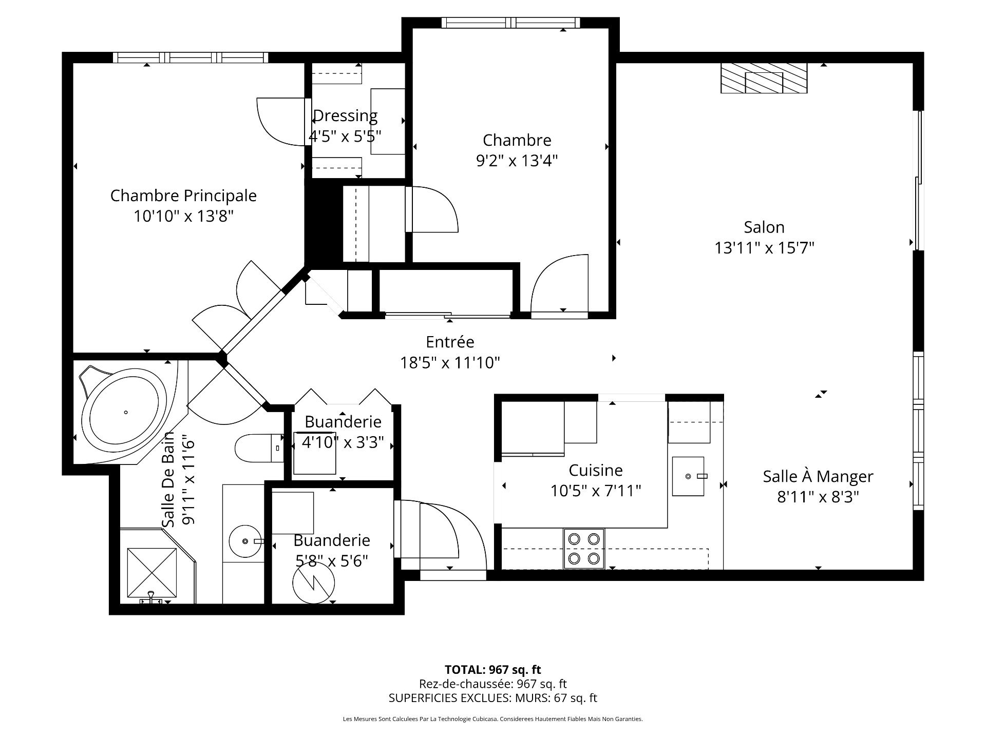
Bright condo within walking distance of Parc de la Cité, offering a comfortable and functional living environment. The open-concept living and dining area features a gas fireplace and a living room window that offers beautiful sunset views, creating a warm and inviting atmosphere. The unit includes two generously sized bedrooms, including a primary bedroom with a large walk-in closet and a second bedroom with a walk-in. Spacious bathroom with heated floors, central air conditioning, elevator in the building, and one outdoor parking space. Prime location close to all amenities.
Inclusions: curtains, poles, cooker hood, living room clock, light fixtures.
This condo has benefited from several recent upgrades enhancing comfort, functionality, and modern appeal. Between late 2021 and early 2022, new ceramic flooring was installed in the kitchen, hallway, and entrance, along with hardwood flooring in the living room and dining area. The unit was freshly painted in 2022.
In 2022, a new linoleum floor was installed in the bathroom over the heated ceramic flooring, providing added durability and comfort. Electrical outlets with USB and USB-C ports were also added in 2022 for increased convenience. Custom-made curtains were installed in 2022, as well as new light fixtures in all rooms, contributing to a cohesive and well-finished interior.
In 2024, the kitchen was upgraded with the installation of a quartz countertop, adding a modern and elegant touch.
The property is ideally located near Parc de la Cité, Raymond-Lévesque Library, bike paths, grocery stores, primary and secondary schools, public transportation, restaurants, CLSC, Promenades Saint-Bruno, and Dix30. Easy access to highways, commuter train, and major bridges.